Aménagements intérieurs
BLOX, Copenhague

 
 

Concept

Dès les premières maquettes, la possibilité d’empiler les différents programmes du bâtiment a été écarté en privilégiant la fusion des activités autour d’un hall central surplombant la route.
Le résultat est un amoncellement de cubes qui s’insèrent les uns dans les autres, créant des espaces multiples.
La structure, les assemblages entre les espaces et
les matériaux sont complexes, variés, résolument contemporains.

 
oma-rasmus-hjortshoj-coast-blox68 large.jpg
 

Architecte mandataire  : OMA (Rem Koolhaas & Ellen van Loon)
Architecte local : C.F. Møller
Localisation : Grand canal de Copenhague, Danemark.


Phase : Aménagements intérieurs d'un bâtiment à usage mixte.
Conception et Exécution des intérieurs (2012-2013) : 
- dessin des plans, élévations, sols, plafonds, choix des matériaux, éclairage et électricité des 
- espaces publics, cafétéria, bureaux, auditorium, salle d’exposition, circulations verticales, escaliers et 22 appartements.

 
oma_blox_copenhagen-rasmus-hjortshoj-coast_green_glass_block
 
Axel_Aucouturier_OMA_BLOX_Copenhagen_3D_Revit_model_structure_analysis
 
Axel_Aucouturier-OMA_BLOX_rasmus-hjortshoj-coast_lobby_interior
 
OMA-BLOX-Delfino-Sisto-Legnani-and-Marco-Cappelletti
 

Localisation : Canal de Copenhague
Livraison : 2018
Coût : 268 millions €
Surface : 28 000m2
Espaces publics 6 600m2 / Logements 3 500m2 / Bureaux 8 200m2 / Exposition et commerces 4 700m2 / Cafétéria 1 000m2

Maîtrise d’œuvre : OMA (mandataire) / C.F. Møller (exécution) Maîtrise d’ouvrage : Realdania
Ingénieurs : Arup (conception), Cowi (exécution)
Paysagiste : Kragh & Berglund
Scénographe : Ducks Sceno
Contractant principal : Züblin A/S

 
Concept sketch

Concept sketch

Built ventilation grid

Built ventilation grid

 
 
 
 
 
Auditorium : Interior fitout Section of acoustic and lighting panels, made in collaboration with the lighting designer Ducks Sceno.

Auditorium : Interior fitout
Section of acoustic and lighting panels, made in collaboration with the lighting designer Ducks Sceno.

 
OMA_BLOX_DAC_exhibition_hall_auditorium_Photography_Rasmus_Hjortshø_ COAST-street_link_Black-Diamond
 
AA OMA BLOX technical Execution drawing : 1/1 detail of the assembly between a partition, a false ceiling and the slab above.
 
Axel_Aucouturier_OMA_blox-Ceiling_rainer-taepper.jpg
 
 
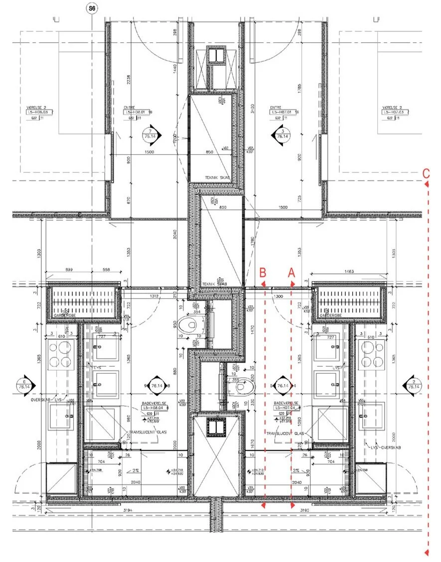
Fit-out plans / Level 5. General plans and execution drawings of the 22 apartments on the top floors.

Fit-out plans / Level 5. General plans and execution drawings of the 22 apartments on the top floors.

 
AA+OMA+BLOX+Execution+plan+of+2+apartments.jpg
 
Dark grey visible structural truss - White matt & light brown leather furniture - Gold mesh acoustic ceiling

Dark grey visible structural truss - White matt & light brown leather furniture - Gold mesh acoustic ceiling

 
 
oma_blox_-rasmus-hjortshoj-coast_black_timber_dark_larch_interior
 
Bathroom (A & B elevations)

Bathroom (A & B elevations)

 
 
Kitchen / Living room (C. Execution elevation/technical section)

Kitchen / Living room (C. Execution elevation/technical section)

 
A hygge-intimate atmosphere inhabits the private spaces.  White matt finish kitchen elements - Stainless steel benchtop/splashback

A hygge-intimate atmosphere inhabits the private spaces.
White matt finish kitchen elements - Stainless steel benchtop/splashback

 
 
C / Elevation Concrete formwork pattern of a core_Completed, 2018. Photo ©Rasmus Hjortshoj
 
Black tinted insitu concrete core (stair-elevator circulation) - Stainless steel handrail/railing

Black tinted insitu concrete core (stair-elevator circulation) - Stainless steel handrail/railing

 
 
AA+OMA+BLOX+-+D+%2F+Section+on+1+of+the+4+cores+of+circulation.+It+includes+material+choices+and+drawings+of+the+walls%2C+stairs%2C+railings+and+grids.Completed%2C+2018.+Photo+%C2%A9BLOX.jpg
 
Dark concrete - Light grey concrete stair - Stainless steel railing - Grating handrail - Brushed aluminum technical elements

Dark concrete - Light grey concrete stair - Stainless steel railing - Grating handrail - Brushed aluminum technical elements

 
 
AA+OMA+BLOX+Execution+plan+%3A+Core+3+%2F+level+1.A+%2F+Aluminum+acoustic+panels+elevation%2C+2012.B+%2F+Completed%2C+2018.jpg
 
Dark tinted black for the concrete core - Gold mesh for Shaft access/acoustic panels

Dark tinted black for the concrete core - Gold mesh for Shaft access/acoustic panels

 
 
oma_blox_-rasmus-hjortshoj-coast_black_mesh_facade_exterior.jpg
 

 
AMO & Rem Koolhaas, Countryside, a report, Taschen-Guggenheim, 2020

AMO & Rem Koolhaas, Countryside, a report, Taschen-Guggenheim, 2020

 
"Countryside a report"(PDF, extracts)
 

Voir d’autres projets :

 

Cathédrale de Strasbourg

 

Maison contemporaine dans les Alpes

 

Maison & jardin sous les pins (Vannes)